Planetensingel 13, Alphen Aan Den Rijn
Bekijk 31 foto's
Bekijk 31 foto's
Bekijk 31 foto's
Heeft u interesse?
Neem contact met ons op. We geven graag meer informatie of plannen een bezichting.
Prijs
€ 735.000 k.k.
Perceeloppervlakte
307m²
Woonoppervlakte
185m²
Kamers
6
Omschrijving
Kenmerken
- Prijs
- € 735.000 k.k.
- Status
- Beschikbaar
- Oplevering
- In overleg
- Adres
- Planetensingel 13
- Postcode
- 2402 AA
- Plaats
- Alphen Aan Den Rijn
Aanvaarding
Bouw
- Soort woonhuis
- Eengezinswoning, Geschakelde 2-onder-1-kapwoning, Split-level woning
- Soort bouw
- Bestaande bouw
- Bouwjaar
- 1971
- Onderhoud binnen
- Goed
- Onderhoud buiten
- Goed
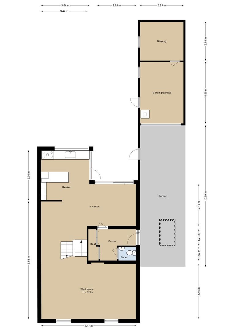
Oppervlakten en inhoud
- Woonoppervlakte
- ca. 185m²
- Perceeloppervlakte
- ca. 307m²
- Inhoud
- ca. 746m³
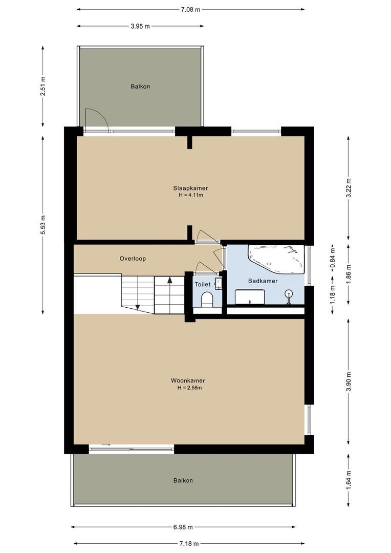
Indeling
- Aantal kamers
- 6
- Aantal slaapkamers
- 3
- Aantal badkamers
- 1
- Aantal verdiepingen
- 4
- Voorzieningen
- Buitenzonwering, Zonnepanelen
Energie
- Energielabel
- A
- Isolatie
- Dubbel glas, Volledig geisoleerd, HR-glas
- Warm water
- C.V.-ketel, Zonneboiler
- Verwarming
- C.V.-ketel, Open haard
- Ketel
- Vaillant Ecotec Plus (2021, Combi-ketel, Eigendom)
Buitenruimte
- Ligging
- Aan rustige weg, In woonwijk
- Balkon
- Ja
- Tuin
- Achtertuin, Voortuin
- Achtertuin
- Noord, 63m², 7×9cm
- Schuur
- Aangebouwd steen
Garage
- Soort garage
- Carport
Downloads
Locatie
Street view
Map view
10 min
20 min
30 min
Reistijd
Voorzieningen
Bereken je reistijd
Kies je vervoer
Maximale reistijd
10 min.
20 min.
30 min.
Reis moment
Daluren
Piekuren
Toon resultaten
Voorzieningen
Geef hieronder aan welke voorzieningen u op de kaart wilt tonen.
Kies voorzieningen
School
Dokter
Apotheek
Restaurant
Sportschool
OV
Supermarkt
Ziekenhuis
Kerk
Tandarts
Bioscoop
Kapper
Toon resultaten
Plattegronden
360° Foto's
Laden, een moment a.u.b.
Planetensingel 13 in Alphen aan den Rijn
Bekijk verloop van de zon
Uw browser ondersteunt geen WebGL
Interesse? Neem contact met ons op
We vertellen graag meer over onze dienstverlening. Bel of mail voor een afspraak.
Liever telefonisch contact?
U kunt ons van maandag t/m vrijdag van 09:00 tot 17:30 en zaterdag van 10:00 tot 16:00 bereiken op
